C15 Plans d'assemblages complexes
-
Généralités
-
-
-
-
C-15 Plans d'assemblage complexes
Prends connaissance du plan de cours, Visiteur anonyme.
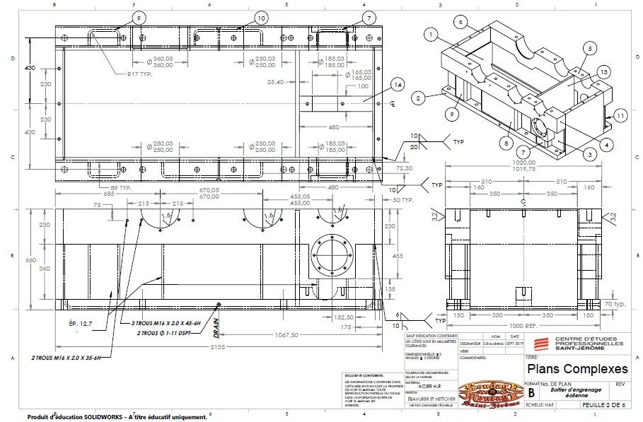
Ci-haut: le type de plan qu'on retrouve couramment en atelier
Les tâches proposées dans ce cours Moodle « Interprétation de plans et devis » te permettront de développer les habiletés nécessaires pour comprendre l’information technique utilisée en fabrication mécanique. Tu apprendras à lire et décoder les symboles, les vues, les coupes et les tolérances afin de préparer ou réaliser ton travail de manière autonome et précise. Plusieurs types de ressources sont offertes. Plusieurs sont interactives et offrent des rétroactions, ce qui te permettra de maîtriser plus efficacement les notions essentielles à l’interprétation de plans.
L'horaire des cours, les règles à suivre ainsi que les ressources incontournables et pertinentes pour l'ensemble du cours se trouvent dans la section « Boîte à outils » .
Objectifs d'apprentissage
À la fin de ce cours, tu seras en mesure de :
-
repérer rapidement l’information pertinente dans un plan ou un devis
-
comprendre les symboles, les conventions et le vocabulaire technique utilisés en fabrication mécanique
-
interpréter correctement les vues, les coupes, les tolérances et les indications nécessaires à la réalisation d’une pièce
-
valider ta compréhension pour éviter les erreurs d’exécution en atelier
-
appliquer ces informations pour préparer ou réaliser une tâche de fabrication
Conseils
La lecture de plans peut devenir plus exigeante à mesure que les détails se multiplient, mais c’est exactement de cette progression que naît ta compétence. Chaque symbole que tu décodes, chaque vue que tu comprends et chaque tolérance que tu interprètes renforce ton autonomie en atelier. Avance à ton rythme, reviens sur les ressources interactives au besoin, et rappelle‑toi que la maîtrise vient par étapes. Tu es en train de développer une habileté essentielle dans le métier — et chaque effort te rapproche d’une compréhension complète et solide.
N'hésite pas à m'écrire si tu as des questions.
PLAN DE COURS COMPLET -
-
RÈGLES DE SANTÉ ET DE SÉCURITÉ
« Lire un plan, c’est déjà faire de la prévention : si tu te trompes sur papier, c’est l’atelier qui te le fait payer. »
La première étape d'un projet pour le soudeur est de lire et comprendre son plan. À partir de celui-ci, tu pourras déterminer les pièces dont tu auras besoin, mais aussi les outils à utiliser pour les préparer, la façon de déplacer les pièces dans l'atelier, le bruit généré, les étincelles, etc. Toutes ces réflexions te permettront de planifier ton travail pour qu'il soit efficace et SÉCURITAIRE.
Soit attentif à ton environnement en tout temps!
-
Partie 1: Interpréter les projections et les vues utilisées dans un plan d’assemblage complexe.
• Détermination juste du type de projection utilisé.
• Interprétation correcte des différents types de lignes.
• Distinction correcte des différentes vues utilisées.
• Association juste des données entre les différentes vues représentées.
• Interprétation juste des particularités des plans d’atelier de structure.
-

30 min.
Distinguer les deux types de projection principales, les différentes vues et les types de lignes

Appuie ici pour découvrir les 2 types de projections Distinction entre les vues isométriques ou orthogonales Types de lignes dans un planComprendre la disposition des vues d'un plan en vue orthogonale et identifier s'il s'agit d'une projection Américaine ou Européenne.
-

30 min.
Comprendre le fonctionnement des plans de structure métallique

Plan de structure métallique Désignation de matérielLes plans de structures métalliques comportent certaines particularités. Je t'invite à visionner ce qui suit pour en apprendre davantage
-


2 h
Exercice 1.9
Cahier de théorie et exercices p. 60 à 63


-

Tu dois faire vérifier tes exercices auprès de ton enseignant avant de continuer

- Exercice 1.1
- Exercice 1.2
-
Interpréter les cotes et les notes utilisées dans un plan d’assemblage complexe.
• Interprétation exacte :
– des cotes de forme et de position;
– des tolérances dimensionnelles;
– des notes générales et locales;
– de la liste de matériel;
– des particularités des plans d’atelier de structure.
-
3 Interpréter les symboles de tolérance géométrique utilisés dans un plan d’assemblage complexe.
• Interprétation juste de tolérances de forme.
• Interprétation juste de tolérances d’orientation.
• Interprétation juste de tolérances de positionnement
-
Interpréter les symboles de soudage utilisés dans un plan d’assemblage complexe.
• Interprétation exacte des symboles de soudage pour une préparation en U, en J et avec latte d’écartement.
• Interprétation exacte des symboles pour un soudage effectué en plusieurs étapes.
• Interprétation exacte du pas et de la longueur de la soudure.
-
Produire une liste de préparation de pièces à partir d’un plan d’assemblage complexe.
• Repérage complet des éléments sur un plan d’assemblage complexe.
• Production d’une liste de préparation complète et tenant compte de l’équipement à utiliser.
• Planification optimale des coupes pour l’économie des matériaux.
-


20 min.
Observation d'un soudeur GMAW
La teinte de ton casque devrait être ajustée entre 10 et11 pour les exercices effectués dans cette compétence
Familiarise-toi avec les fonctions délai, sensibilité et observe aussi ce que tu vois lorsque tu varie la teinte de ton masque. Un bon ajustement te permettra de bien voir le bain de fusion et quelques centimètres du joint de soudage, pas plus!


Te familiariser avec les diverses fonctions de ton casque à souder et observer un soudeur à l'oeuvre.
- EPI (équipements de protection individuelle) comme:
- Bottes de travail
- Lunettes de sécurité
- Manteau de soudeur
- Vêtements de travail
- Gants de soudage GMAW
-


4 H
Exercice 4
Fascicule Effectuer une soudure d’angle sur un assemblage en T (multipasse)



Bien positionner tes angles pour favoriser la pénétration et le mouillage
- EPI
- Coffre
- Carte étudiante
Fais valider l'écartement et le pointage de ton assemblage. Fais valider un côté à la fois.
Procède à ton auto-évaluation
-


4 h
Test de pliage selon la norme canadienne du Bureau de Soudage

Évaluer ta capacité à produire des soudures multi-passes respectant les normes mécaniques et les exigences techniques
Imprimer le document -
À retenir!

Les paramètres de transition des modes de transfert varient selon
- Le diamètre et le type de fil
- Le mélange gazeux
- L'épaisseur du métal...
-
Évaluation

Tu dois maintenant aviser ton enseignant que tu es prêt pour ton évaluation finale!
Afin de bien te préparer, voici un rappel des critères d'évaluation
BRAVO!
-
-